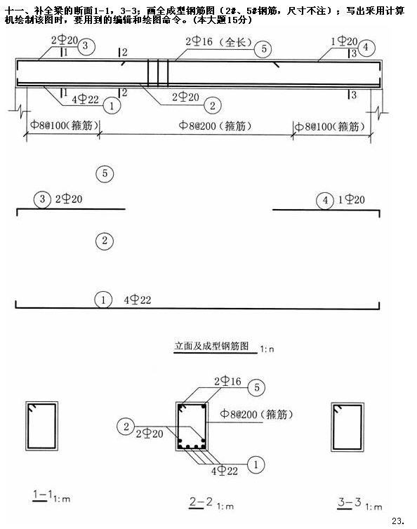
全国2010年7月高等教育自学考试土木工程制图试题
发布日期:2018-05-24 编辑整理:浙江自考网
全国2010年7月高等教育自学考试土木工程制图试题
课程代码:02386

浙江自考网声明:
1、由于各方面情况的调整与变化,本网提供的考试信息仅供参考,考试信息以省考试院及院校官方发布的信息为准。
2、本网信息来源为其他媒体的稿件转载,免费转载出于非商业性学习目的,版权归原作者所有,如有内容与版权问题等请与本站联系。联系邮箱:952056566@qq.com
浙江自考便捷服务
浙江自考网考生群



